Crestron DWG


Author
Message
JackCornish
J
Junior Member (19 reputation)Junior Member (19 reputation)Junior Member (19 reputation)Junior Member (19 reputation)Junior Member (19 reputation)Junior Member (19 reputation)Junior Member (19 reputation)Junior Member (19 reputation)Junior Member (19 reputation)
Group: Forum Members
Posts: 2, Visits: 9
Hi, I am having an issue when importing Crestron product DWG's to the Plan view page.I have tried other manufacturer drawings and these display fine. The Crestron products however do not. Are you able to help? 
Rob Robinson
Rob Robinson
Forum Administrator (392K reputation)
Group: Administrators
Posts: 2.4K, Visits: 9.1K
Hi Jack,

Can you describe the issue and email the DWG to techsupport@stardraw.com?  Then we will be able to reproduce whatever it is that your are experiencing.  Thanks. 


Kind regards,
Rob Robinson
Stardraw.com
JackCornish
J
Junior Member (19 reputation)Junior Member (19 reputation)Junior Member (19 reputation)Junior Member (19 reputation)Junior Member (19 reputation)Junior Member (19 reputation)Junior Member (19 reputation)Junior Member (19 reputation)Junior Member (19 reputation)
Group: Forum Members
Posts: 2, Visits: 9
Cheers for the quick reply.

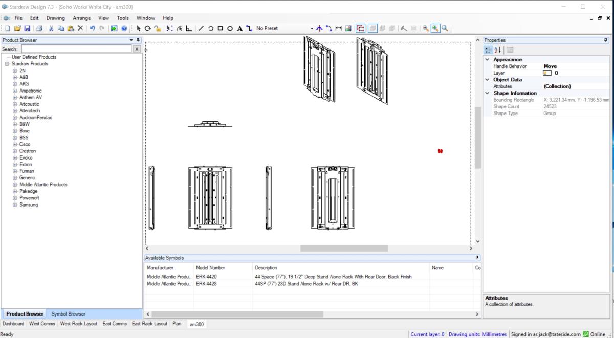
For example the attached shows a Future Automation PS55 which shows correctly. I have imported the Crestron AM300 next to it (red dot to the right).
I have emailed the DWG to support as requested.
Rob Robinson
Rob Robinson
Forum Administrator (392K reputation)
Group: Administrators
Posts: 2.4K, Visits: 9.1K
For those following the thread the main issue with the visibility of this DWG file was that most objects in the original file were white.  One solution, which was appropriate in this case, was to choose the "Black & White" option in the Import DWG dialog. 


Kind regards,
Rob Robinson
Stardraw.com
GO

Merge Selected

Merge into selected topic...



Merge into merge target...



Merge into a specific topic ID...




Similar Topics

Reading This Topic

Login

Explore
Messages
Mentions
Search